- Unsere Stadt
- Bürgerservice
- Leben
- Bildung & Betreuung
- Angebote für Kinder, Jugendliche und Familien
- Jugend-Workshop der „ILE Münchberger Land“
- Offene Jugendarbeit
- Jugendorganisationen
- Jugendprogramm - die Münchberger Institutionen stellen sich vor
- Kinderprogramm 01-03/2026
- Kinderprogramm 04-06/2026
- Jugendprogramm 01-03/2026
- Jugendprogramm 04-06/2026
- Jugendstadtrat
- jungeKUNSTschule
- Taschengeldbörse
- Familienpaten
- Angebote für Senioren
- Kirchliche Einrichtungen & Glaubensgemeinschaften
- Soziales
- Gesundheit
- Ehrenamtskarte Bayern
- Hofer Landbus
- Erleben
- Kulcity
- Schützenhaus
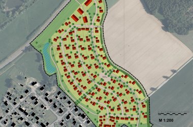
Steinleithe
Neubaugebiet Steinleithe
Das Neubaugebiet „Steinleithe“ (ehemals „Mechlenreuth Nord II“) wurde in einem Bauabschnitt erschlossen und steht für modernes Wohnen in attraktiver Lage. Die Planungen starteten bereits Ende 2020, seit Dezember 2021 ist der Bebauungsplan rechtskräftig. Mit den Erschließungsarbeiten wurde im Mai 2022 begonnen.
Dank der hervorragenden Anbindung über die B289 und die A9 verbindet das Gebiet ruhiges Wohnen mit optimaler Erreichbarkeit.
Seit Juni 2024 zieht in der „Steinleithe“ immer mehr Leben ein: Mit dem Bezug des ersten Hauses hat sich das Neubaugebiet zu einem attraktiven Zuhause für Jung und Alt entwickelt. Zahlreiche Bauvorhaben sind bereits realisiert oder in Umsetzung.
Freie Grundstücke
Erschließung: über die „Südumgehung“
Anzahl Bauplätze: 90 Bauparzellen
Noch freie Bauplätze: 35 (Stand 09.04.2026)
- Einzelhäuser: 24
- Doppelhaushälften: 04
- Mehrfamilienhäuser: 04
- Tiny-Häuser: 03
Größe: Die Grundstücksgrößen entnehmen Sie bitte dem Parzellierungsplan.
Bebaubarkeit: Baugrundstücke für Einzelhäuser oder Mehrfamilienhäuser
Kaufpreis: 112,- € pro m²
Bauleitplan: hier klicken
Kontakt:

